
Hemsworth, Wakefiled
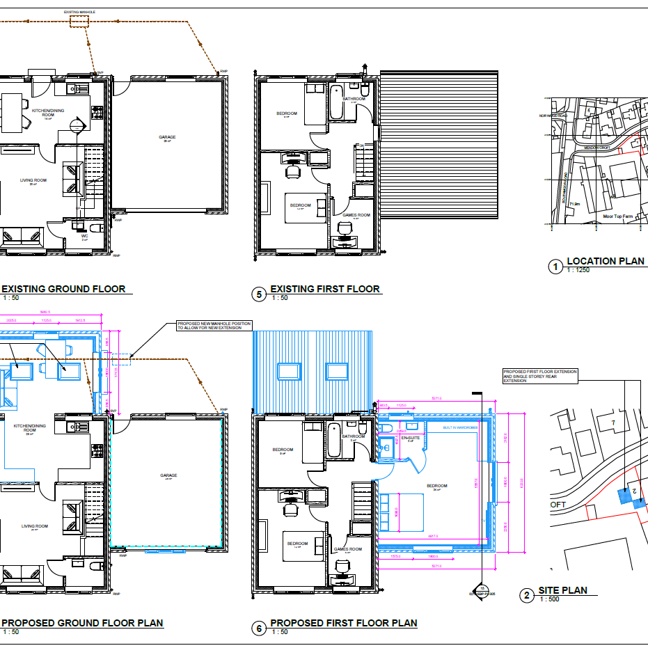
Enhanced Building Plans successfully designed detailed plans for this first-floor and single-storey extension in Hemsworth, Wakefield, tailoring the layout to meet the client’s needs. Whilst co-ordinating with Wakefield council we have secured planning approval.
The homeowners wanted to extend above their garage to create a spacious fourth bedroom with an en suite and Juliet balcony.
Additionally, a single-storey rear extension will expand the kitchen into a bright and open-plan kitchen living space. Our expert team handled the design, planning application, and approval process, ensuring a smooth experience for the client.
It’s now over to Enhanced Building Management LTD who will be making a start on the build of this project in the summer.
About project
Architecture & Planning Permission
Project start date
Works done
Design
Planning
Liaising with council
Request a quote
Browse through the photos at the bottom of the page to see the proposed transformation for yourself. Contact us today to start your single-storey extension project and create the living space you’ve always wanted.





