
Barnsley
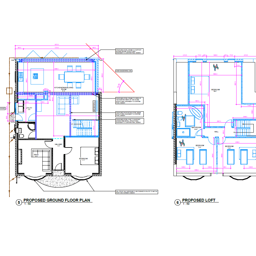
Enhanced Building Plans successfully secured planning approval for a full roof lift and rear extension in Barnsley. This project includes a complete roof lift to create additional living space, a striking rear glass gable for added natural light, and a full internal redesign to enhance functionality. The rear extension, finished in modern render, further expands the home’s footprint.
After careful coordination with the council, we made key alterations to meet approval requirements, ensuring a smooth and successful outcome.
About project
Architecture & Planning Permission
Enhanced Building Plans
Project start date
March 2025
Works done
Design
Planning
Liaising with council
Request a quote
Browse the plans below to see the transformation for yourself.
Thinking of a loft conversion or extension? Contact us today to start planning your perfect home upgrade!








