

Ackworth, Pontefract
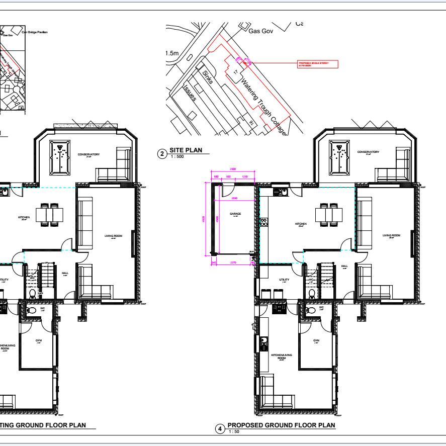
We recently had the pleasure of working on a project in Ackworth, Pontefract. The client wanted a single-storey extension to the side of their property, and we were happy to help. After conducting a thorough site visit, we worked closely with the client to design plans that met their exact specifications.
To avoid the need for full planning permission, we recommended applying for a lawful development certificate. This certificate provides proof that the extension can be built without planning permission, provided it falls within certain parameters. Our team submitted the application to Wakefield council and are currently awaiting their response.
At Enhanced Building Plans, we understand that every project is unique. That’s why we provide tailored solutions that meet our clients’ specific needs.
About project
Architecture & Planning Permission
Project start date
Works done
Design
Planning
Building Regulations
Request a quote
Browse through the photos at the bottom of the page to see the proposed transformation for yourself. Contact us today to start your own single storey extension project and create the living space you’ve always wanted.








