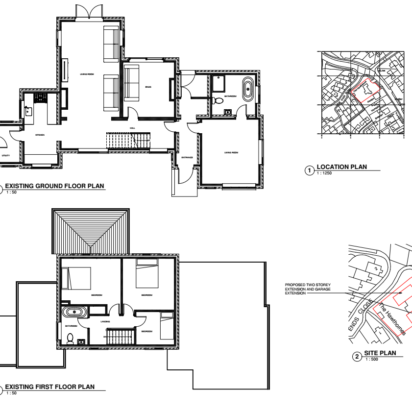
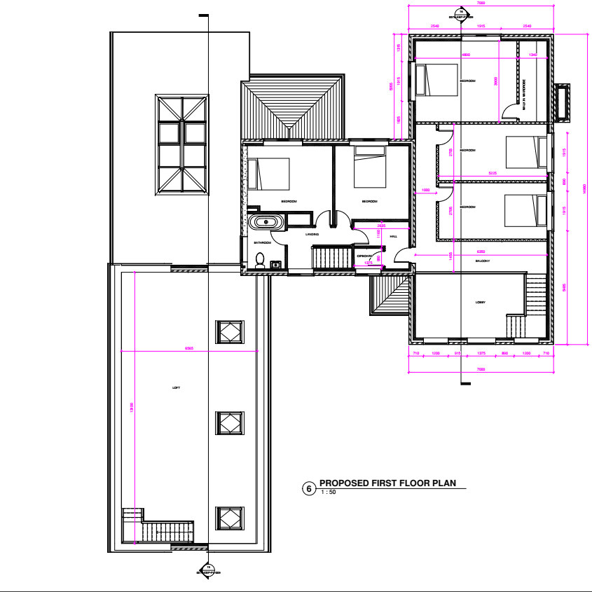
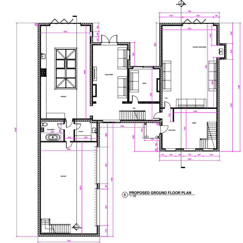
A two-storey extension can increase your home’s living space and give your family more room to enjoy. At Enhanced Building Plans, we specialize in designing and planning high-quality extensions tailored to your specific needs.
We take time to understand your requirements and create a design that meets your expectations. Our services include submitting planning applications on your behalf and CGI design for a realistic visual of the finished product.
We’ll guide you through the entire process, from the initial consultation and design to construction and finishing touches. With over 15 years of experience in the construction industry, we can also introduce you to local trustworthy contractors.
Request a free quote today and find out how we can help you achieve your dream home with a two-storey extension.










